Aubetiere

117 567

Maison de plain pied au plan rectangulaire. Un Best-Seller !

* ces prix sont non contractuels et donnés à titre indicatif sous réserve d’évolution et d’erreur de saisie ou de dysfonctionnement pour une construction sur vide sanitaire 0,60 avec un système de chauffage Pompe à chaleur Air/Eau et plancher chauffant au rez de chaussée (hormis pour la gamme Focus qui est équipée d'un système Air/Air monosplit et convecteurs radiants dans les chambres et d'une construction sur terre plein). Ces prix s'entendent hors terrain et adaptation au sol éventuellement nécessaires, hors raccordement et assainissement éventuels et hors revêtement de sol, carrelages, faiences et peintures, qui peuvent être ajoutés en option à la commande. Les prix indiqués sont fonction du lieu de construction déclaré. Les visuels de cette page sont non contractuels et peuvent être avec options. L’assurance Dommage Ouvrage peut être souscrite en sus.
Catégorie :
Description
Top des ventes

Aubetiere

Donnez vie à votre projet de construction avec notre modèle traditionnel Aubetière

Optez pour le modèle Aubetière, fleuron de la gamme traditionnelle Babeau-Seguin. Cette maison de plain-pied se décline en 11 versions, allant de 48,5 m² à 148 m².

L’Aubetière est une maison moderne, réputée pour son excellent rapport qualité/prix. Vous la trouverez disponible avec de nombreux plans et déclinaisons, vous permettant de créer une maison individuelle sur mesure !

Donnez vie à votre rêve en personnalisant l'Aubetière selon vos envies et vos besoins.

Obtenez un devis gratuit en quelques clics

Pas envie de dépenser beaucoup trop pour une rénovation dont la qualité n'est pas garantie et avec trop d'aléas ?

Renoveo vous propose de vous chiffrer votre projet de Démolition/Reconstruction. 

  • Ce champ est masqué lorsque l‘on voit le formulaire.
  • Ce champ est masqué lorsque l‘on voit le formulaire.
  • Ce champ est masqué lorsque l‘on voit le formulaire.

    0%
    Top des ventes

    Best-of de nos maisons

    L'Aubetière, l'un de nos plus grands succès

    Obtenez un devis gratuit en quelques clics

    Pas envie de dépenser beaucoup trop pour une rénovation dont la qualité n'est pas garantie et avec trop d'aléas ?

    Renoveo vous propose de vous chiffrer votre projet de Démolition/Reconstruction. 

    • Ce champ est masqué lorsque l‘on voit le formulaire.
    • Ce champ est masqué lorsque l‘on voit le formulaire.
    • Ce champ est masqué lorsque l‘on voit le formulaire.

    Maison best-seller

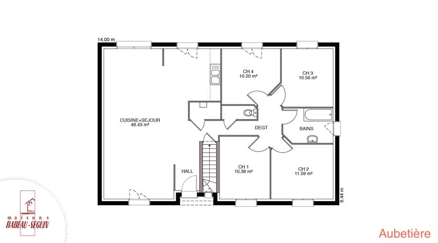
    Plan Aubetiere

    Découvrez les 4 plans proposés pour cette Aubetière

    Obtenez un devis gratuit en quelques clics

    Pas envie de dépenser beaucoup trop pour une rénovation dont la qualité n'est pas garantie et avec trop d'aléas ?

    Renoveo vous propose de vous chiffrer votre projet de Démolition/Reconstruction. 

    • Ce champ est masqué lorsque l‘on voit le formulaire.
    • Ce champ est masqué lorsque l‘on voit le formulaire.
    • Ce champ est masqué lorsque l‘on voit le formulaire.

    Vue 3d

    Aubetiere

    Axonométrie

    Aubetiere
    Vue 3D intérieure

    Visite Virtuelle Aubetière

    Découvrez cette maison Aubetiere de façon immersive avec une visite virtuelle son intérieur
    Informations complémentaires
    Niveaux